Killjoys Season 3- Aneela's Ship
Killjoys Season 3 - Aneela's Ship
Killjoys Season 3 - Aneela's Ship
Killjoys Season 3- Aneela's Ship
Killjoys Season 3- Aneela's Ship
Killjoys Season 3 - Aneela's Ship
Killjoys Season 3 - Space Elevator
Killjoys Season 3 - Space Elevator
Killjoys Season 3 - Necropolis
w13nightclub.gif
w13nightclubbooth.gif
w13nightclubrender3.gif
w13qi-spiral.gif
w13qi-spiral2.gif
w13vatican-library1.gif
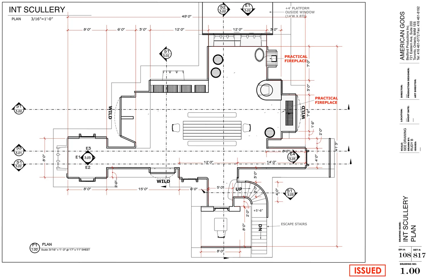
AG1_int scullery_layout_PLAN_.jpg
AG3_INT SCULLERY_ELEV.jpg
AG2_int scullery_ELEV.jpg
AG6_SCULLERY_OVER3D.jpg
scullery8.jpg
scullery12.jpg
SCULLERY20.jpg
scullery14.jpg
AG10_PRISON_PLAN.jpg
ag11_prison_sections.jpg
INT PRISON DOWN HALL.jpg
INT PRISON HERO DOORS.jpg
prev / next